Getting tired of paying rent and rather buy a home?
New to the market is this starter home on a large block (1,012m2 approx.) with a 6m x 6m steel framed (unpowered shed).
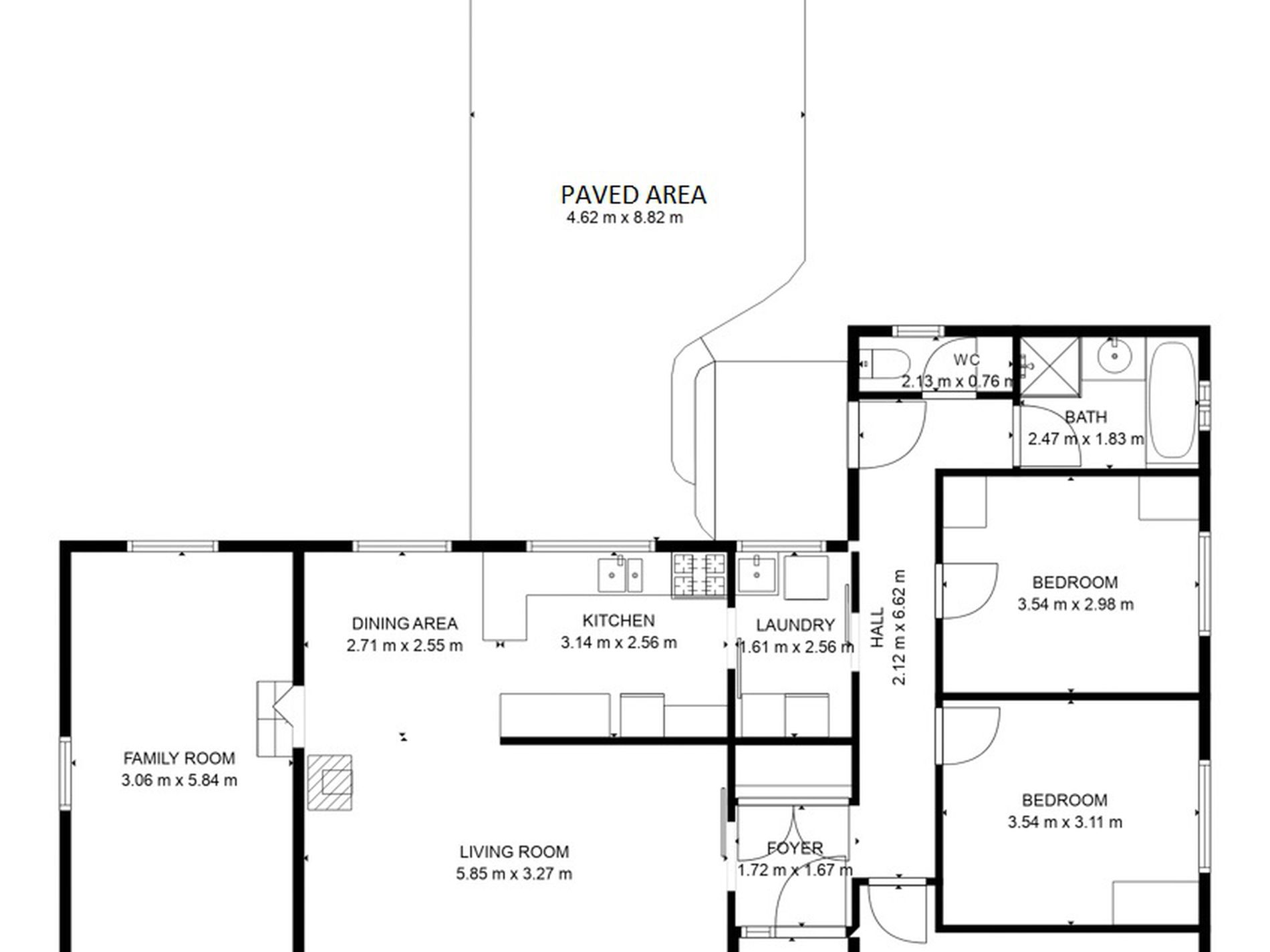
Let's take a look at what's on offer:
• 3 Bedrooms (suits double and main suits king size beds)
• 1 Family bathroom with a shower and a bathtub
• 2 Living areas
• Functional kitchen and laundry
• Fireplace
• Evaporative air conditioner
• 6m x 6m unpowered shed (approx.)
• 1,012m2 block (approx.)
• Good rear access to block and shed
Bring your tools and create your own place, all the basics are covered for you to move in.
If you would rather buy than rent in the current market connect with Iris Haynes 0420 471 461 to arrange a viewing at short notice. Don’t wait too long as other are calling already.
Council rates: $1,991.16 pa
Water rates: $270.00 pa
Features
- Evaporative Cooling
- Open Fireplace
- Fully Fenced
- Shed

























