This home has been thoughtfully updated to suit the lifestyle of a busy family.
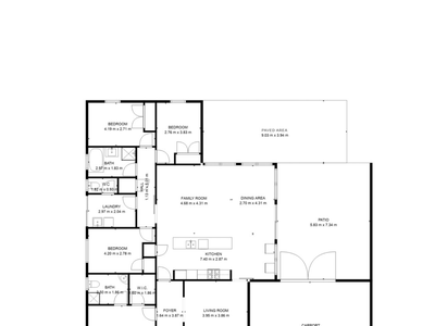
It has a stunning galley kitchen, fully renovated family bathroom, and modernized laundry. With two spacious living areas, everyone can find their own space to relax. All bedrooms feature built-in robes, and there are great storage options throughout the property.
Enjoy the recent high-quality updates, including insulated roller shutters on all windows and sliding doors, as well as a solar power system to help reduce energy costs.
Key Features Your Family Will Love:
• Spacious 4-bedroom home with built-in robes
• 2 bathrooms, including a fully renovated family bathroom
• Open-plan kitchen, dining, and living area
• Second living area for additional space
• Evaporative air conditioning
• Large linen closet for extra storage
• Beautiful galley kitchen with modern appliances
• Quality wool carpets
• Fully renovated laundry
• Undercover carport with backyard access
• Powered 6m x 6m shed (approx.)
• Citrus trees in the yard
• 810m² block (approx.)
• Living space of 167m² (approx.)
• Council Rates: $3,257.65 (2024 to 2025)
• Water rates: $290.00 approx.
Recent Updates for Your Comfort:
• Fully renovated family bathroom with shower and bath
• Fully renovated laundry and toilet
• Quality insulated roller shutters on all windows and sliding doors
• Solar power system (6kw approx.) for energy savings
• Reverse cycle Split Air conditioner to 2 rooms
Located on a charming street in Somerville, this property is just minutes from primary schools and a high school.
Don’t miss out on this ideal family home! Contact Iris Haynes today for a private inspection.
Act quickly - this opportunity won’t last long!
Features
- Evaporative Cooling
- Split-System Air Conditioning
- Outdoor Entertainment Area
- Shed
- Dishwasher
- Solar Panels

































