Discover the timeless elegance of 10 Croesus Street, a beautiful period property nestled in central Kalgoorlie.
If character homes captivate you, prepare to fall in love with this rare gem that seamlessly blends classic charm and modern living.
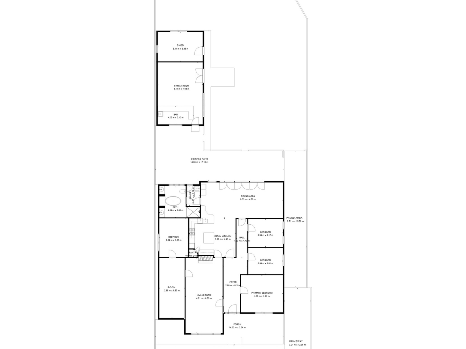
Charming Living Spaces:
• 4 generously sized bedrooms
• Spacious room perfect for cosy family movie nights or as a play room
• 2 spacious living areas
• Large games room complete with a bar setup, perfect for entertaining
Classic Character Features:
• Grand 12-foot-high ceilings that exude spaciousness
• Luxurious bathroom featuring a clawfoot bath, double vanity, and separate shower
• Original polished floorboards
• Decorative back-to-back fireplace adding an elegant focal point
• Stunning light fixtures that complement the home’s historic allure
• Charming street presence with a freshly painted wide front veranda
Modern Comforts for Today’s Family:
• The chef of the family will adore the country kitchen with a double oven and central island bench
• Kids will delight in their own playroom (enclosed patio)
• Entertainers will revel in the games room with an inbuilt bar
• A spacious shed and attached carport ideal for caravans or trailers
• Convenient evaporative air conditioning and keyless entry pad
Outdoor Highlights:
• External games room featuring a full bar setup for gatherings
• Double carport located at the rear for convenience
• Powered shed with roller door and rear lane access
• Well-maintained, lush garden and lawn area for outdoor relaxation
Sip a morning coffee on the charming front veranda or host memorable evenings in the games room with friends. Situated on a generous 974sqm block in a prime central location, this home is must-see.
With the market on the rise, don’t miss your chance to secure this piece of history.
Contact Iris Haynes today to arrange a viewing and make this exceptional home yours!
Council rates $2,238.45 pa approx. / water rates $285.00 pa approx.
Features
- Evaporative Cooling
- Split-System Heating
- Fully Fenced
- Outdoor Entertainment Area
- Secure Parking
- Floorboards







































