First Home Buyers: Step into your own space with this charming weatherboard & iron home that combines modern updates with practical living—ideal for those ready to stop renting and start owning.
Investors: Looking for high rental demand and strong returns? 11 Belgravia Place is a solid addition to any investment portfolio, with features that appeal to a wide range of tenants.
Indoor Comforts:
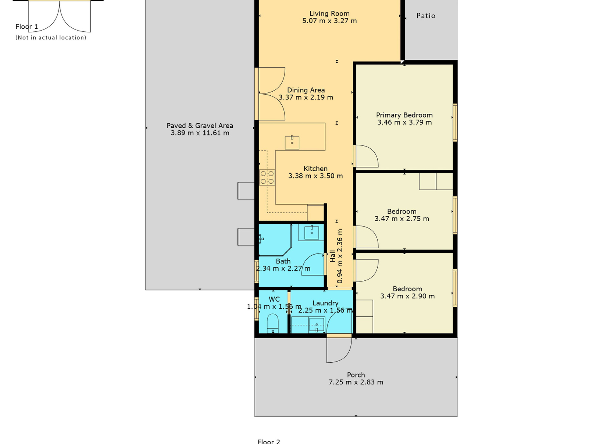
• Three Bedrooms: Perfect for growing families or shared living.
• Updated Bathroom: Enjoy a modern space with a large shower—no renovations needed.
• Modern Kitchen: Featuring an electric cooktop and oven, blending style with functionality.
• Open Plan Living with tiled flooring: Ideal for low maintenance living
• Comfortable Living: Reverse cycle air conditioning in the master bedroom and living area
Outdoor Features:
• New Roof installed in 2024
• Enhanced Security: High fencing for privacy and security—great for families and tenants.
• Plenty of parking: Large parking area, perfect for multiple vehicles or visitors.
• Spacious block: 692m² block
Why It’s Perfect for First Home Buyers and Investors:
• First Home Buyers: Move-in ready with modern updates, saving you time and money on renovations.
• Investors: High rental demand area with potential for solid returns. The low-maintenance design appeals to long-term tenants. Rent appraised at $500 to $540 per week (Feb 2025)
• Council rates: $2,197.98 pa
• Water rates: $290.00 pa (approx.)
Don’t Miss Out on This Opportunity!
Whether you’re looking to start your homeownership journey or expand your investment portfolio, 11 Belgravia Place offers the best of both worlds.
Contact Iris Haynes 0420 471 461 today to arrange a viewing!



























